зовнішні + внутрішні стіни + дах
зовнішні + внутрішні стіни + дах
зовнішні + внутрішні стіни + дах
1. Домокомплект СІП з монтажем
2. Бетонний фундамент свайно-стрічковий з монолітною плитою
Прорахунки фундаменту зроблені:
2.1 На рівній ділянці
2.2 З стандартними грунтами (Паля – глибина 1м, ширина 25-30см; Ростверк ширина 30см)
2.3 Висота цоколя 30см
2.4 Глибина ростверка 20см
2.5 Товщина арматури (Ростверк/Паля – 10мм, Плита – 8мм)
2.6 Марка Бетону М-250
2.7 Товщина монолітної плити 10см
*додаткові роботи, непередбачені витрати на техніку, покращення бетону або товщини арматури оплачується додатково.
РОЗРАХУНКИ є приблизними та підлягають уточненню в залежності від місцезнаходження ділянки та складності робіт.
ДОМОКОМПЛЕКТ СІП ПАНЕЛЕЙ
Стіни Зовнішні СІП 160мм
Стіни Внутрішні СІП 160мм
Брус стіновий 140*45мм
Термовставки 140*90мм
Міжповерхове перекриття
(якщо 2-х поверховий будинок)
Балки перекриття 180*45
OSB EGGER 22мм Вологостійка
Дах СІП 200мм
Брус даховий здвоєний 180*90мм
Брус для розуклонки
Термовставки 180*90мм
Каркас для Парапету для Плоского даху
(якщо плоский дах)
Брус 100*45мм
OSB EGGER 10мм
Домокомплект СІП панелей комплектуються:
СІП ПАНЕЛІ:
-Пінополістирол EPS – 11 кг/м2
-OSB EGGER волостійка 10мм
Брус калібрований камерної сушки (меньше 20%) оброблений вогне-біо захистом
Комплект Кріпильних матеріалів
Саморізи
Конструктивний шуруп
Гвинт для дерева
Анкер бетонний
Руберойд
Бітумний праймер
Піна монтажна
Комплект з’єднувальних елементів
Тоді залиште заявку, і ми розрахуємо вартість будівництва
Розробимо або адаптуємо ваше планування під СІП технологію.
Гарантійний платіж 15 000 грн.
повертається після оплати СІП домокомплекту.
Внутрішня площа приміщень більша за рахунок тонших стін з СІП панелей
СІП 16см / Газоблок 40см / Цегла 51см
На збудований будинок бригадами СУПЕРСІП
Складається на 95% з деревини та на 5% з вогне-водостійкого клею. По вмісту фармальдигіду OSB відноситься до класу E0 та E1. До якого входять звичні нам товари: меблі, одяг, косметика.
Пінополістирол високої щільності забезпечує чудову термоізоляцію. Вважається одним із найбільш екологічних будівельних матеріалів. Смола, що входить до складу пінополістиролу, використовується у медицині як антисептик.
Високоякісний клей під великим тиском надійно і назавжди з’єднує OSB плити з пінополістиролом утворюючи СІП-панель.
стіна з газоблоку товщиною 700 мм
стіна з цегли товщиною 2500 мм
Бригади Супер СІП змонтували 150+ домокомплектів різних розмірів по центральній та західній Україні. Після закінчення фасаду та ремонту ніхто не може відрізнити СІП будинок від будинку з будь-яких інших матеріалів, а у Вас буде сучасне житло на опалення якого ви будете витрачати мінімальні кошти.
Більшість наших клієнтів обирають Супер СІП за можливість отримати готовий будинок з фасадом, вікнами, покрівлею та усіма внутрішніми роботами. За рахунок великих обʼємів ми надаємо знижки на матеріали, а досвід дає можливість робити все швидко та якісно.

Надаємо якісний продукт за доступними цінами для клієнта. Також контролюємо усі процеси будівництва одним прорабом.

Ціни на домокомплекти без націнок, від виробника. Власний комплекс по виготовленню та покрою СІП, сушка дерева.

Професіонали у будівельній сфері у кожному напрямку

Незалежне дослідження медійного порталу ВСІМ.

Експертна оцінка
«БУДІВНИЦТВО БУДИНКІВ З СІП ПАНЕЛЕЙ».

«КРАЩА БУДІВЕЛЬНА КОМПАНІЯ»
за результатами конкурсу.
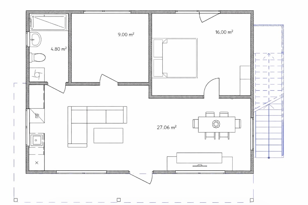
*приклад будинку 120 м²
Домокомплект СІП з монтажем на готовому фундаменті
ДОМОКОМПЛЕКТ СІП ПАНЕЛЕЙ
Стіни Зовнішні СІП 160мм
Стіни Внутрішні СІП 160мм
Брус стіновий 140*45мм
Термовставки 140*90мм
Міжповерхове перекриття
(якщо 2-х поверховий будинок)
Балки перекриття 180*45
OSB EGGER 22мм Вологостійка
Дах СІП 200мм
Брус даховий здвоєний 180*90мм
Брус для розуклонки
Термовставки 180*90мм
Каркас для Парапету для Плоского даху
(якщо плоский дах)
Брус 100*45мм
OSB EGGER 10мм
Домокомплект СІП панелей комплектуються:
СІП ПАНЕЛІ:
-Пінополістирол EPS – 11 кг/м2
-OSB EGGER волостійка 10мм
Брус калібрований камерної сушки (меньше 20%) оброблений вогне-біо захистом
Комплект Кріпильних матеріалів
Саморізи
Конструктивний шуруп
Гвинт для дерева
Анкер бетонний
Руберойд
Бітумний праймер
Піна монтажна
Комплект з’єднувальних елементів
1. Домокомплект СІП з монтажем
2. Бетонний фундамент свайно-стрічковий з монолітною плитою
Прорахунки фундаменту зроблені:
2.1 На рівній ділянці
2.2 З стандартними грунтами (Паля – глибина 1м, ширина 25-30см; Ростверк ширина 30см)
2.3 Висота цоколя 30см
2.4 Глибина ростверка 20см
2.5 Товщина арматури (Ростверк/Паля – 10мм, Плита – 8мм)
2.6 Марка Бетону М-250
2.7 Товщина монолітної плити 10см
*додаткові роботи, непередбачені витрати на техніку, покращення бетону або товщини арматури оплачується додатково.
РОЗРАХУНКИ є приблизними та підлягають уточненню в залежності від місцезнаходження ділянки та складності робіт.