Супер СІП завершила будівництво стильного будинку в архітектурі барнхаус у місті Полтава.
Площа будинку — 101 м², два поверхи, продумане компактне планування та бездоганна енергоефективність завдяки СІП технології.
Барнхаус — стиль, що прийшов зі Скандинавії та завоював Україну завдяки своїй простоті, лаконічності та затишку.
На відміну від каркасного будівництва, СІП-панелі забезпечують вищу міцність, точність геометрії та кращу теплоізоляцію, а всі елементи виготовляються на заводі під контролем якості.
Особливості проекту в Полтаві
Тип будинку: барнхаус із СІП панелей
Площа: 101 м²
Фундамент: виконаний за 5 днів
Монтаж СІП домокомплекту: 11 днів
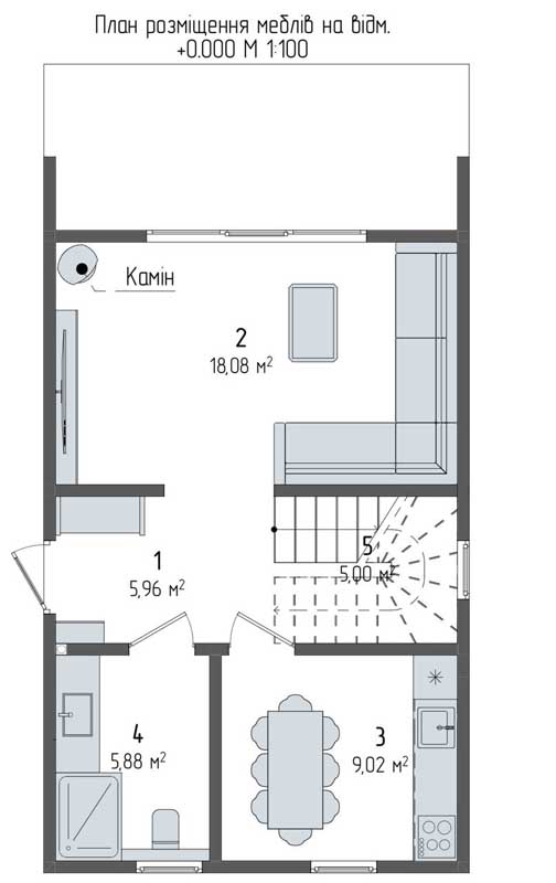
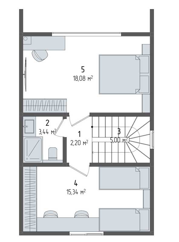
Планування:
- 1 поверх — зала, кухня, санвузол
- 2 поверх — дві спальні кімнати та санвузол
- Перевага: висока енергоефективність і швидкість будівництва
Чому обирають Супер СІП
🏆 Компанія №1 в Україні за версією медіапорталу «ВСІМ» та результатами незалежного дослідження.
🏆 Краща будівельна компанія 2024 за результатами конкурсу Народний Бренд.
🏆 Вибір країни 2023 за результатами експертної оцінки дослідження.
Переваги технології СІП
- До 50% приватного будівництва у світі ведеться за СІП або каркасною технологією
- СІП будинки — найтепліші та найенергоефективніші
- Висока швидкість зведення — середній термін монтажу 10 днів
- Європейські матеріали:
- OSB EGGER — вологостійка, екологічна
- Пінополістирол Г1 — негорючий
- Власне виробництво панелей і брусу: камерна сушка, вогнебіозахист
- Комплексне будівництво під ключ: від фундаменту до даху та фасаду
Супер СІП — лідер будівництва СІП будинків в Україні
З 2008 року ми збудували понад 2000 СІП домокомплектів по всій Україні.
Ми маємо власне виробництво, професійну команду та гарантуємо кращу ціну й якість будівництва.
📍 м. Полтава, Полтавська область
📞 Плануєте будинок у стилі барнхаус?
Супер СІП побудує його швидко, якісно та з гарантією!