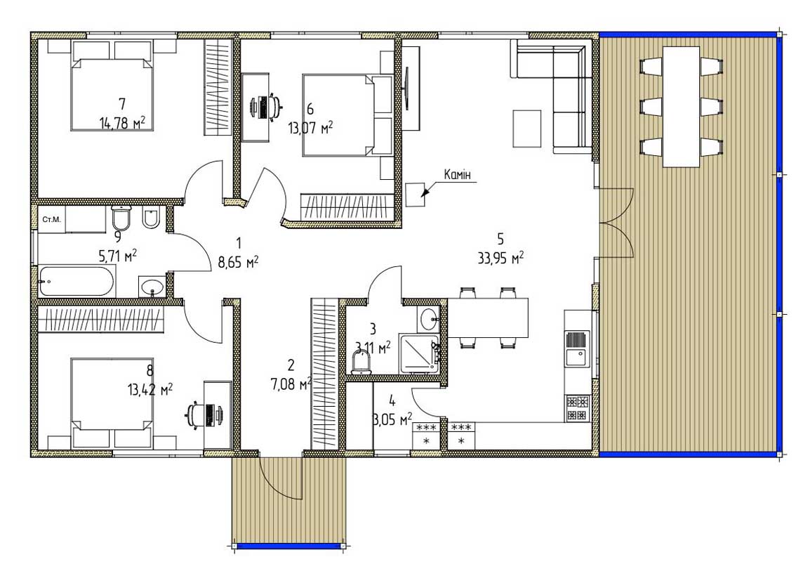
У Вінницькій області компанія Супер СІП реалізувала сучасний будинок із СІП панелей площею 115 м².
Проєкт вирізняється гарним продуманим плануванням, великою терасою та сучасним архітектурним стилем.
Будинок поєднує естетику, практичність і енергоефективність — головні переваги технології СІП.
Особливості проєкту у Вінницькій області
- Сучасний будинок площею 115 м²
- Велика тераса для комфортного відпочинку
- Фундамент, монтаж СІП домокомплекту, покрівля та монтаж вікон — виконано фахівцями Супер СІП
- Оптимізоване планування для щоденного комфорту
- Використання якісних матеріалів європейського виробництва
Чому обирають Супер СІП?
🏆 Компанія №1 в Україні за версією медіапорталу «ВСІМ» та результатами незалежного дослідження
🏆 Краща будівельна компанія 2024 за результатами конкурсу Народний Бренд
🏆 Вибір країни 2023 за результатами експертної оцінки дослідження
Наші переваги
- Будуємо найбільше СІП будинків в Україні
- Власне виробництво СІП панелей із європейських компонентів:
- OSB EGGER (вологостійка, екологічна)
- Пінополістирол Г1 (негорючий утеплювач)
- Власний деревообробний цех:
- камерна сушка брусу до 20% вологості
- вогне- та біозахист
- Комплексне будівництво під ключ — від фундаменту до фасаду й даху
- Середній термін монтажу СІП домокомплекту — 10 днів
- Повна готовність будинку до ремонту — до 45 днів
Супер СІП — лідер СІП будівництва в Україні
З 2008 року ми збудували понад 2000+ СІП домокомплектів по всій Україні.
Компанія поєднує власне виробництво, досвідчену команду та інноваційні технології, що гарантує якість і швидкість реалізації кожного проєкту.
Чому варто обрати СІП технологію?
- До 50% приватного будівництва у світі здійснюється за каркасною або СІП технологією
- СІП будинки — найтепліші та найенергоефективніші у світі
- Будівництво в кілька разів швидше, ніж традиційними методами
- Ідеальне співвідношення ціни, якості та швидкості реалізації
📍 Вінницька область, Україна
📞 Хочете сучасний будинок із терасою та енергоефективним дизайном?
Супер СІП побудує його для вас швидко, якісно та з гарантією.