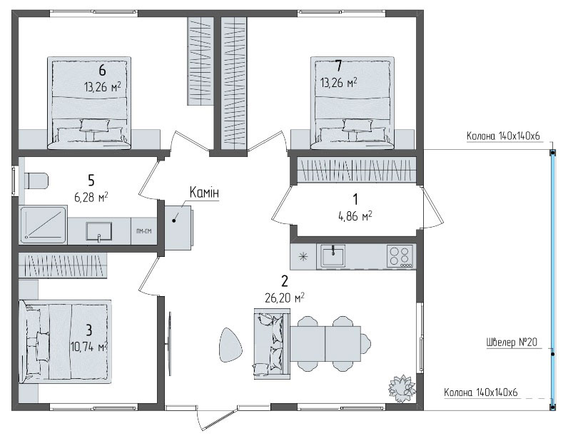
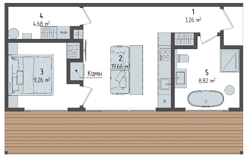
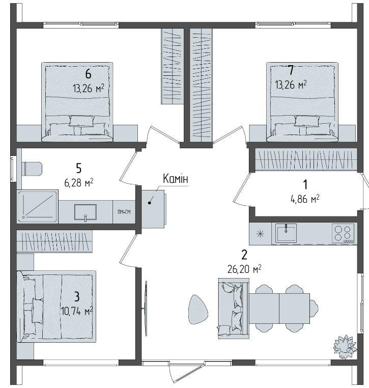
Будинок

Будинок із СІП панелей 225 м2

225 м2

Поверхів
1
Кімнат
4
Санвузлів
2
Балконів/терас
Поділитись:
Facebook
Telegram

ДОМОКОМПЛЕКТ
CІП-панелей

від 200$ / м2

зовнішні + внутрішні стіни + дах

ФУНДАМЕНТ
+ домокомплект

від 300$ / м2

зовнішні + внутрішні стіни + дах

БУДИНОК
до ремонту

від 400$ / м2

зовнішні + внутрішні стіни + дах

Враховано:

1. Домокомплект СІП з монтажем
2. Бетонний фундамент свайно-стрічковий з монолітною плитою

Прорахунки фундаменту зроблені:
2.1 На рівній ділянці
2.2 З стандартними грунтами (Паля – глибина 1м, ширина 25-30см; Ростверк ширина 30см)
2.3 Висота цоколя 30см
2.4 Глибина ростверка 20см
2.5 Товщина арматури (Ростверк/Паля – 10мм, Плита – 8мм)
2.6 Марка Бетону М-250
2.7 Товщина монолітної плити 10см

*додаткові роботи, непередбачені витрати на техніку, покращення бетону або товщини арматури оплачується додатково.
РОЗРАХУНКИ є приблизними та підлягають уточненню в залежності від місцезнаходження ділянки та складності робіт.

  • висота будинку 3,1 м
Враховано:
  1. Домокомплект СІП з монтажем на готовому фундаменті

ДОМОКОМПЛЕКТ СІП ПАНЕЛЕЙ

Стіни Зовнішні СІП 160мм
Стіни Внутрішні СІП 160мм
Брус стіновий 140*45мм
Термовставки 140*90мм

Міжповерхове перекриття
(якщо 2-х поверховий будинок)
Балки перекриття 180*45
OSB EGGER 22мм Вологостійка

Дах СІП 200мм
Брус даховий здвоєний 180*90мм
Брус для розуклонки
Термовставки 180*90мм

Каркас для Парапету для Плоского даху
(якщо плоский дах)
Брус 100*45мм
OSB EGGER 10мм

Домокомплект СІП панелей комплектуються:
СІП ПАНЕЛІ:
-Пінополістирол EPS – 11 кг/м2
-OSB EGGER волостійка 10мм
Брус калібрований камерної сушки (меньше 20%) оброблений вогне-біо захистом
Комплект Кріпильних матеріалів
Саморізи
Конструктивний шуруп
Гвинт для дерева
Анкер бетонний
Руберойд
Бітумний праймер
Піна монтажна
Комплект з’єднувальних елементів

Враховано:
  1. Домокомплект СІП з монтажем
  2. Бетонний фундамент свайно-стрічковий з монолітною плитою
    • Арматура Ростверк *10
    • Арматура Плита *8
    • Бетон М250 (стрічка-сваї-плита перекриття (підлога)
    • Комунікації по фундаменту (вода, каналізація, закладні під світно)
    • Пісок/Щебень для підсипки
    • Опалубка
  3. Вікна
    • Профіль WDS, склопакет 2-х камерний, енергозберігання.
  4. Фасад (на вибір)
    • ППС 50мм, сітка, клей армуючий, кварц-грунт, кутики, короїд.
    • Сайдинг Металевий/Пластиковий, рейка, вітробар’єр, контррейка.
  5. Покрівля
    Плоска
    • ПВХ мембрана, аератори, воронки, геотекстиль.
    Скатна
    • Металочерепиця, рейка, вітробар’єр, контррейка.
Не враховано:
  1. Додаткові елементи фасаду (віконні відливи, парапетні накривашки, водостічні труби, оздоблення цоколя)
  2. Дахова підшивка
  3. Підключення до мереж (вода, електрика, водовідведення, септик, дренажі)
  4. Внутрішні роботи (ремонт)

Вас цікавить будівництво власного будинку?

Тоді залиште заявку, і ми розрахуємо вартість будівництва




    Планування

    Концепт проект вашого будинку за 7 днів. Безкоштовно!

    Розробимо або адаптуємо ваше планування під СІП технологію.

    Гарантійний платіж 15 000 грн.
    повертається після оплати СІП домокомплекту.

    Індивідуальне планування
    Відзеркалене планування

    Чому СІП технологія?

    Готовий СІП будинок ДЕШЕВШЕ
    на 30%
    від ціни будинку з газоблоку
    на 50%
    від ціни будинку з цегли

    Економія на фундаменті

    Для СІП будинку вистачає полегшеного малозаглибленого фундаменту

    Термін експлуатації

    В кліматичних умовах на території України експлуатація СІП панелей можлива від 100 років

    Більша площа

    Внутрішня площа приміщень більша за рахунок тонших стін з СІП панелей
    СІП 16см / Газоблок 40см / Цегла 51см

    10 років гарантії

    На збудований будинок бригадами СУПЕРСІП

    Що таке СІП панель?

    ОСП
    Пінополістирол
    Клей

    ОСП / OSB

    Складається на 95% з деревини та на 5% з вогне-водостійкого клею. По вмісту фармальдигіду OSB відноситься до класу E0 та E1. До якого входять звичні нам товари: меблі, одяг, косметика.

    Пінополістирол

    Пінополістирол високої щільності забезпечує чудову термоізоляцію. Вважається одним із найбільш екологічних будівельних матеріалів. Смола, що входить до складу пінополістиролу, використовується у медицині як антисептик.

    Поліуретановий клей

    Високоякісний клей під великим тиском надійно і назавжди з’єднує OSB плити з пінополістиролом утворюючи СІП-панель.

    Теплоефективність

    Стіна з СІП панелей товщиною 160 мм зберігає більше тепла, ніж:

    стіна з газоблоку товщиною 700 мм

    стіна з цегли товщиною 2500 мм

    БЕЗКОШТОВНО ПІДБЕРЕМО
    5 проектів будинків з ЦІНАМИ




      Бригади Супер СІП змонтували 150+ домокомплектів різних розмірів по центральній та західній Україні. Після закінчення фасаду та ремонту ніхто не може відрізнити СІП будинок від будинку з будь-яких інших матеріалів, а у Вас буде сучасне житло на опалення якого ви будете витрачати мінімальні кошти.

      \\ Реалізовані проекти

      Будуємо енергоефективні
      будинки з СІП панелей

      \\ Про нас

      Сучасний та комплексний
      підхід до клієнта

      Більшість наших клієнтів обирають Супер СІП за можливість отримати готовий будинок з фасадом, вікнами, покрівлею та усіма внутрішніми роботами. За рахунок великих обʼємів ми надаємо знижки на матеріали, а досвід дає можливість робити все швидко та якісно.

      Комплексне будівництво

      Надаємо якісний продукт за доступними цінами для клієнта. Також контролюємо усі процеси будівництва одним прорабом.

      Власне виробництво

      Ціни на домокомплекти без націнок, від виробника. Власний комплекс по виготовленню та покрою СІП, сушка дерева.

      Власні бригади

      Професіонали у будівельній сфері у кожному напрямку

      №1 в Україні

      Незалежне дослідження медійного порталу ВСІМ.

      Вибір країни 2023

      Експертна оцінка
      «БУДІВНИЦТВО БУДИНКІВ З СІП ПАНЕЛЕЙ».

      Народний Бренд 2024/2025

      «КРАЩА БУДІВЕЛЬНА КОМПАНІЯ»
      за результатами конкурсу.

      Термін будівництва до 45 днів*

      *приклад будинку 120 м²

      Схожі проекти

      Будинок

      222 м2

      Поверхів
      1
      Кімнат
      4
      Санвузлів
      3
      Балконів/терас
      Будинок

      305 м2

      Поверхів
      1
      Кімнат
      4
      Санвузлів
      10
      Балконів/терас
      Будинок

      85 м2

      Поверхів
      1
      Кімнат
      2
      Санвузлів
      1
      Балконів/терас
      Будинок

      127 м2

      Поверхів
      1
      Кімнат
      3
      Санвузлів
      2
      Балконів/терас
      Будинок

      57 м2

      Поверхів
      1
      Кімнат
      2
      Санвузлів
      1
      Балконів/терас
      1
      Будинок

      143 м2

      Поверхів
      1
      Кімнат
      2
      Санвузлів
      3
      Балконів/терас
      • висота будинку 3,1 м
      Враховано:

      Домокомплект СІП з монтажем на готовому фундаменті

      ДОМОКОМПЛЕКТ СІП ПАНЕЛЕЙ

      Стіни Зовнішні СІП 160мм
      Стіни Внутрішні СІП 160мм
      Брус стіновий 140*45мм
      Термовставки 140*90мм

      Міжповерхове перекриття
      (якщо 2-х поверховий будинок)
      Балки перекриття 180*45
      OSB EGGER 22мм Вологостійка

      Дах СІП 200мм
      Брус даховий здвоєний 180*90мм
      Брус для розуклонки
      Термовставки 180*90мм

      Каркас для Парапету для Плоского даху
      (якщо плоский дах)
      Брус 100*45мм
      OSB EGGER 10мм

      Домокомплект СІП панелей комплектуються:
      СІП ПАНЕЛІ:
      -Пінополістирол EPS – 11 кг/м2
      -OSB EGGER волостійка 10мм
      Брус калібрований камерної сушки (меньше 20%) оброблений вогне-біо захистом
      Комплект Кріпильних матеріалів
      Саморізи
      Конструктивний шуруп
      Гвинт для дерева
      Анкер бетонний
      Руберойд
      Бітумний праймер
      Піна монтажна
      Комплект з’єднувальних елементів

      Враховано:

      1. Домокомплект СІП з монтажем
      2. Бетонний фундамент свайно-стрічковий з монолітною плитою

      Прорахунки фундаменту зроблені:
      2.1 На рівній ділянці
      2.2 З стандартними грунтами (Паля – глибина 1м, ширина 25-30см; Ростверк ширина 30см)
      2.3 Висота цоколя 30см
      2.4 Глибина ростверка 20см
      2.5 Товщина арматури (Ростверк/Паля – 10мм, Плита – 8мм)
      2.6 Марка Бетону М-250
      2.7 Товщина монолітної плити 10см

      *додаткові роботи, непередбачені витрати на техніку, покращення бетону або товщини арматури оплачується додатково.
      РОЗРАХУНКИ є приблизними та підлягають уточненню в залежності від місцезнаходження ділянки та складності робіт.

      Враховано:
      1. Домокомплект СІП з монтажем
      2. Бетонний фундамент свайно-стрічковий з монолітною плитою
        • Арматура Ростверк *10
        • Арматура Плита *8
        • Бетон М250 (стрічка-сваї-плита перекриття (підлога)
        • Комунікації по фундаменту (вода, каналізація, закладні під світно)
        • Пісок/Щебень для підсипки
        • Опалубка
      3. Вікна
        • Профіль WDS, склопакет 2-х камерний, енергозберігання.
      4. Фасад (на вибір)
        • ППС 50мм, сітка, клей армуючий, кварц-грунт, кутики, короїд.
        • Сайдинг Металевий/Пластиковий, рейка, вітробар’єр, контррейка.
      5. Покрівля
        Плоска
        • ПВХ мембрана, аератори, воронки, геотекстиль.
        Скатна
        • Металочерепиця, рейка, вітробар’єр, контррейка.
      Не враховано:
      1. Додаткові елементи фасаду (віконні відливи, парапетні накривашки, водостічні труби, оздоблення цоколя)
      2. Дахова підшивка
      3. Підключення до мереж (вода, електрика, водовідведення, септик, дренажі)
      4. Внутрішні роботи (ремонт)