зовнішні + внутрішні стіни + дах
зовнішні + внутрішні стіни + дах
зовнішні + внутрішні стіни + дах
Тогда оставьте заявку, и мы рассчитаем стоимость строительства
Разработаем или адаптируем ваше планирование под СИП технологию.
Гарантийный платеж 15000 грн.
возвращается после оплаты СИП домокомплекта.
Для СИП дома хватает облегченного малоуглубленного фундамента
На построенный дом бригадами СУПЕРСИП
стена из газоблока толщиной 700 мм
стена из кирпича толщиной 2500 мм.
Большинство наших клиентов выбирают Супер СИП за возможность получить готовое здание с фасадом, окнами, кровлей и всеми внутренними работами. За счет больших объемов мы предоставляем скидки на материалы, а опыт позволяет делать все быстро и качественно.

Предоставляем качественный продукт по доступным ценам для клиента. Также контролируем все процессы строительства одним прорабом.

Ціни на домокомплекти без націнок, від виробника. Власний комплекс по виготовленню та покрою СІП, сушка дерева.

Профессионалы в строительной сфере по каждому направлению

Независимое исследование медийного портала ВСІМ

Экспертная оценка оценка
«СТРОИТЕЛЬСТВО ДОМОВ ИЗ СИП-ПАНЕЛЕЙ»

ЛУЧШАЯ СТРОИТЕЛЬНАЯ КОМПАНИЯ
по результатам конкурса.
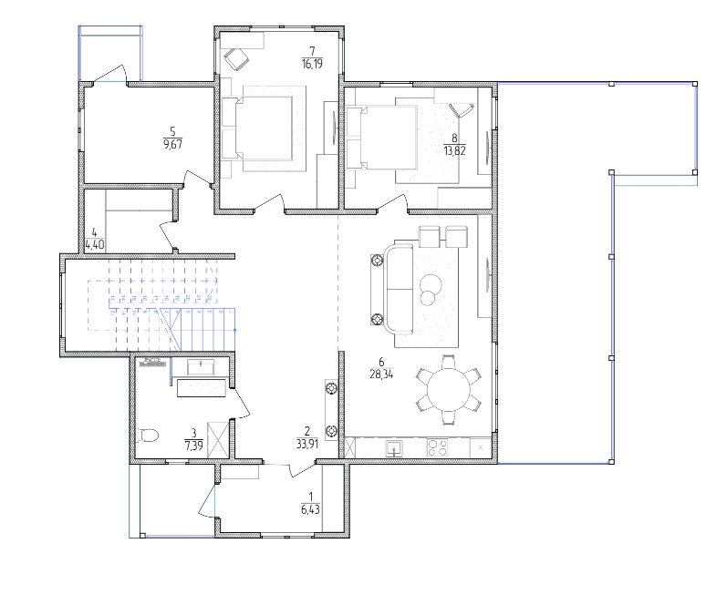
*пример дома 120 м²
Домокомплект СИП с монтажом на готовом фундаменте
ДОМОКОМПЛЕКТ СИП ПАНЕЛЕЙ
Стены Наружные СИП 160мм
Стены Внутренние СИП 160мм
Брус стеновой 140*45мм
Термовставки 140*90мм
Межэтажное перекрытие
(если 2-х этажный дом)
Балки перекрытия 180*45
OSB EGGER 22мм Влагостойкая
Крыша СИП 200мм
Брус крышный сдвоенный 180*90мм
Брус для розуклонки
Термовставки 180*90мм
Каркас для Парапета для Плоской крыши.
(если плоская крыша)
Брус 100*45мм
OSB EGGER 10мм
Домокомплект СИП панелей комплектуется:
СИП ПАНЕЛИ:
-Пенополистирол EPS – 11 кг/м2
-OSB EGGER влагостойкая 10мм
Брус калиброванный камерной сушки (менее 20%) отделан огне-био защитой
Комплект Крепежных материалов
Саморезы
Конструктивный шуруп
Винт для дерева
Анкер бетонный
Рубероид
Битумный праймер
Пена монтажная
Комплект соединительных элементов
1. Домокомплект СИП с монтажом
2. Бетонный фундамент свайно-ленточный с монолитной плитой
Просчеты фундамента сделаны:
2.1 На ровном участке
2.2 Со стандартными грунтами (Свая — глубина 1м, ширина 25-30см; Ростверк ширина 30см)
2.3 Высота цоколя 30см
2.4 Глубина ростверка 20см
2.5 Толщина арматуры (Ростверк/Свая — 10мм, Плита — 8мм)
2.6 Марка Бетона М-250
2.7 Толщина монолитной плиты 10см
*дополнительные работы, непредвиденные расходы на технику, улучшение бетона или толщины арматуры оплачивается дополнительно.
РАСЧЕТЫ приблизительны и подлежат уточнению в зависимости от местонахождения участка и сложности работ.